Deutsch  Español 

NEREIDA'S PORTFOLIO

ARQUITECTO


[Proyectos8] Viviendas en Transición

CIUDAD EN PRUEBAS | LA PUNTA DE SESTAO

Proyecto realizado junto a
Marcos García
Julián E. Fernández
Clara de Juan de Paz

Unidad Docente Maroto

Javier Maroto Ramos + Luis Díaz-Mauriño Lestache

Otoño2010


El programa consiste en proyectar un espacio público de relación que hemos llamado “Biblioteca al aire libre”, un espacio cultural y ecológico que pueda ser utilizado como lugar de reunión, encuentro y relación en un entorno deprimido, que tiene, sin embargo, un gran potencial. Hay que desarrollar también y en su proximidad un programa de vivienda de acogida que llamamos “Viviendas en transición” para favorecer la inserción social y mejorar la autoestima de los colectivos mas desfavorecidos para los que se destinan. Para ello se dispondrán algunos programas complementarios.
Lo llamamos "Ciudad en pruebas" y está orientado al refuerzo de las redes sociales de este barrio industrial de Baracaldo (Bilbao), para generar un tipo novedoso de espacio público.
[Maqueta]
[Maqueta]
Imagen de conjunto
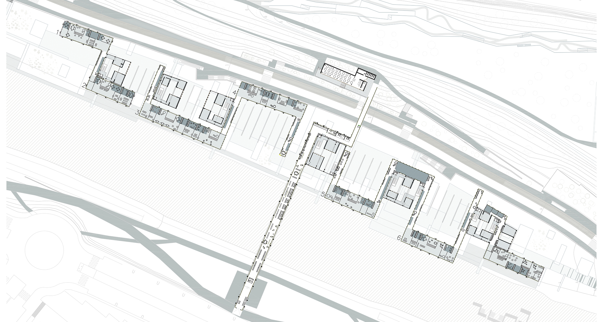
[Planta de espacios comunes]
Cota +5,50 m
[Imagen]
Espacio interior de las naves rehabilitadas como mercado
[Sección transversal]
Nave de asistencia | Grupo crítico
[Sección transversal]
Nave de Talleres y espacios de vivienda | Grupo común
[Zoom]
Sección longitudinal