Deutsch  Español 

NEREIDA'S PORTFOLIO

ARQUITECTO


[Proyectos9] Rehabilitar, transformar, reunir,
mezclar, colocar, disponer, proyectar.

PROGRAMAS HÍBRIDOS | SESTAO

Unidad Docente Maroto

Javier Maroto Ramos + Silvia Canosa Benítez + Alvaro Soto

Pedro Feduchi + Luis Diaz-Mauriño Lestache

Proyecto realizado junto a
Jorge Martín Cano

Primavera2011


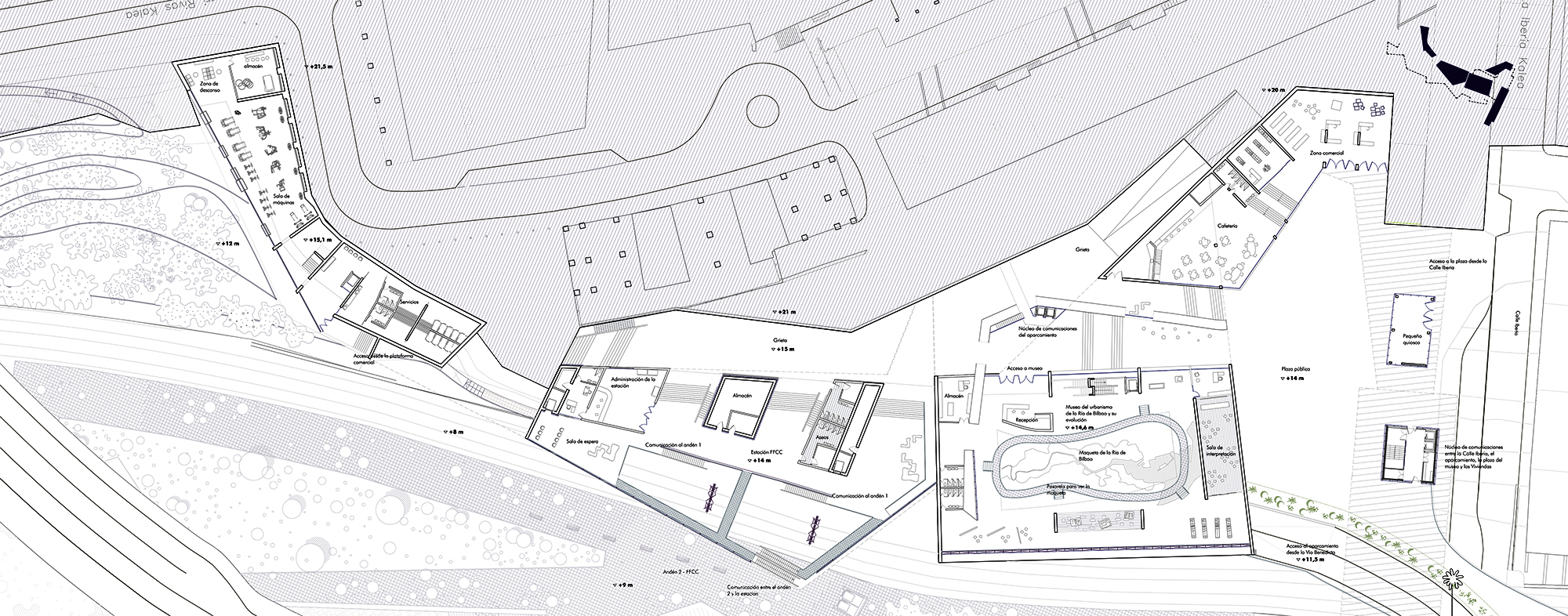
El curso se desarrollará en el barrio Txabarri de Bilbao, en el entorno de la plataforma vacía de la antigua ferrería de AHV (Altos Hornos de Vizcaya), próximo al horno alto nº 1, declarado monumento en el año 2005 por el Gobierno Vasco. Se trata de una zona irregular de unos 3500 m² situada al sur del trazado de las vías del ferrocarril y con una cota media superior a éstas con vistas sobre la ría, la plataforma vacía y la monumental estructura del alto horno.
El programa incluye el traslado de la actual estación ferroviaria de la Iberia a este ámbito, insertándola en el conjunto de usos propuestos para que sea más accesible a los vecinos del barrio de Txabarri. Se asocia con un gran centro comercial y deportivo. A su vez se plantea un gran aparcamiento para unos 200 vehículos, que resuelve las grandes carencias que hay en la zona.
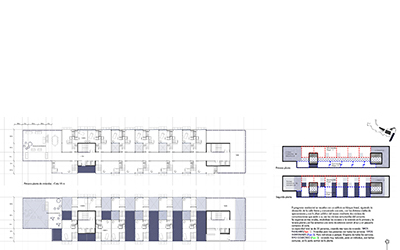
Se propone un conjunto de viviendas colectivas, para favorecer la inserción de esta “sección compleja” en la trama urbana.
[Planta general]
Cota + 15m
[Alzado longitudinal]
Orientación suroeste
[Edificio de viviendas]
Primera y segunda planta
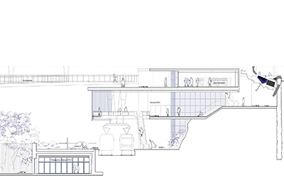
[Secciones transversal]
Estación y zona comercial
[Sección transversal]
Vivienda y aparcamiento