Deutsch  Español 

NEREIDA'S PORTFOLIO

ARQUITECTO


[PFC]Proyecto Final de Carrera

CENTRO DE OCIO + CULTURA + TRABAJO EN MADRID RÍO

Aula PFC ARKRIT

Tutora Silvia Colmenares Vilata

nomviembre2013


Con este proyecto se busca una solución que permita regenerar y adecuar el frente urbano de Madrid Río.
Se propone la fragmentación como estrategia de proyecto, para generar un frente más variado y romper la barrera existente hoy en día. Un frente que permita la conexión entre parque y ciudad.
Se desarrolla un programa de equipamientos públicos, empleando dos grupos de elementos arquitectónicos:
Las Bandas, como concepto arquitectónico de muro, transversales al recorrido del parque;
y las Cajas Puente, como espacios ’entre bandas’ equipados.
Se ha desarrollado un programa de equipamientos públicos, de usos muy intermitente, pudiendo pasar largas temporadas sin actividad. Por ello se plantea la posibilidad de compartir estas, con un Vivero de empresas. De esta forma, se conseguiría una mayor rentabilidad de los diversos programas del proyecto.
El programa se desarrolla partiendo de la idea de Bandas conectadas entre sí, a través de equipamientos.
Estando estos equipamientos vinculados programáticamente con las dos bandas colindantes.
Vista del Emplazamiento del
Proyecto desde el Puente de Toledo
[Plano de Situación]
Entorno Madrid Río
[Cuarta Planta]
Altura +19 m | Acceso a Biblioteca
[Quinta Planta]
Altura +22,80 m | Acceso a Biblioteca + Auditorio
Vista aérea de Proyecto
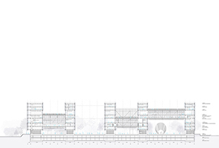
[Alzado longitudinal]
Calle Antonio López
[Sección longitudinal]
[Sección longitudinal]
Vista peatonal de Proyecto
desde Parque Linal Madrid Río
[Lámina08]
Alzado y Secciones transversales
[Lámina09]
Plano de Construcción I
[Lámina10]
Plano de Construcción II
[Lámina11]
Plano de Estructuras I
[Lámina12]
Plano de Estructuras II
[Lámina13]
Plano de Instalaciones